Ханты-Мансийск, Самаровская, 2а стр
Площадь
Жилая
Кухня
Отделка
Класс жилья
Комнат
Номер кв.
Этаж
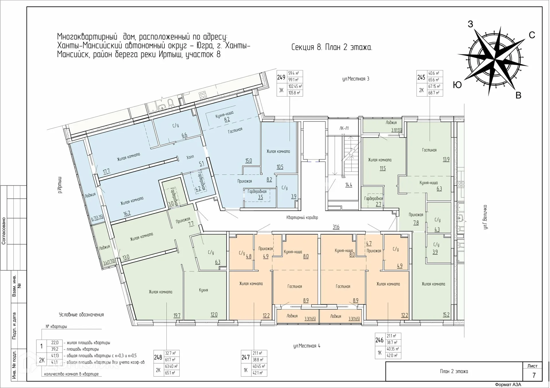
В продаже 3-комнатная квартира в востребованном жилом комплексе "ЖК Дом по ул Самаровская" 🏢. Квартира расположена на 2-м этаже 9-этажного дома. Отличный вариант для комфортной жизни.
Чтобы забронировать эту квартиру бесплатно и проверить актуальную стоимость — свяжитесь с нами прямо сейчас! 📞
ЮГОРСКАЯ РИВЬЕРА 2 -это жилой комплекс с современными решениями по благоустройству, с собственным закрытым двором-сквером для прогулок и встреч, в одном из самых живописных мест города Ханты-Мансийска. Покупая квартиру в нашем доме - вы получаете возможность дышать свежим воздухом, не выезжая из города, наслаждаться прекрасными видами из окон на реку Иртыш и Археопарк и получать удовольствие от каждого дня, проведенного в собственной квартире!
Срок сдачи: 4 кв. 2024 г.
Срок сдачи: 4 кв. 2024 г.
Площади квартир
Этажность
Класс жилья
Корпусов
Стены